Ricerca rapida
Codice
Tipologia
Categoria
Città
Zona
Descrizione
Prezzo (da - a)
-
Mq (da - a)
-
Ordine
Cerca
<< Torna indietro

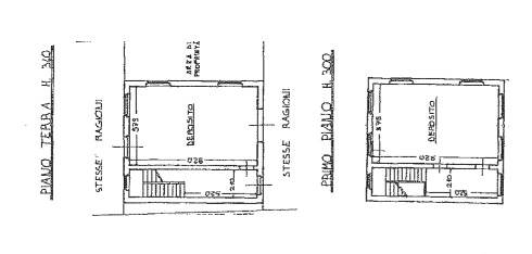
EB8771 - PIANELLO (PC) COMPLESSO IMMOBILIARE

Casa singola, Rustico/Casale, 4 o più locali, Porzione di Casa, Villa, Stabile / Palazzo

VAL TIDONE vendesi complesso immobiliare suddiviso in palazzina composta da 3 ampi monolocali di 50mq c.a, il piano terra gia ristrutturato ed arredato, primo piano in fase di ristrutturazione, secondo piano da ristrutturare.
Ampio magazzino disposto su due livelli con la possibilità di ristrutturare ricavando una villa indipendente o due appartamenti, nel prezzo di vendita è compreso il terreno edificabile adiacente di 1400mq. Per ulteriori informazioni contattare Immobiliare La Maison Piacenza con sede in via Giannino Bosi, 40 Piacenza. Contatti telefonici: cell. 3474131877 Orari del nostro ufficio: dal lunedì al venerdì dalle ore 09:00 alle ore 13:00 pomeriggio dalle ore 15:00 alle ore 19:00.
Prezzo
280.000,00 EUR
Mq
370
Classe
G
Locali
8
Camere
7
Stato Immobile
Da Ristrutturare
Lati Liberi
3
Giardino
Comune
Cookie preference